
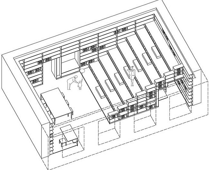
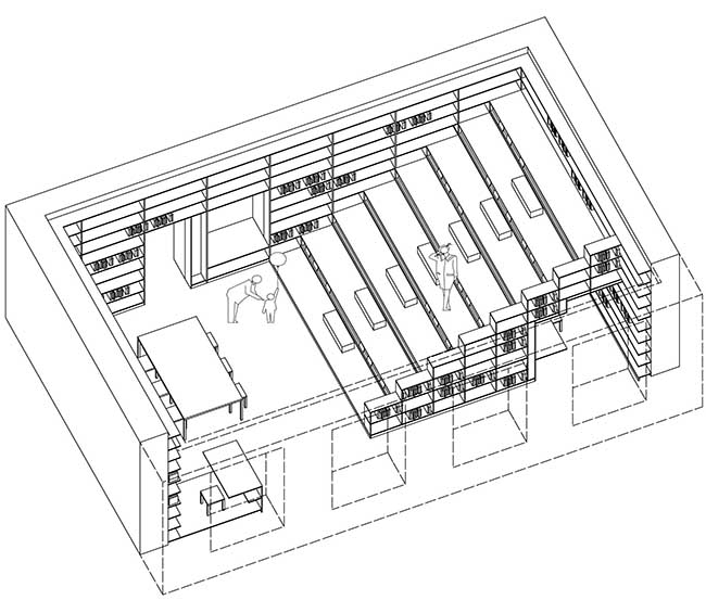
Medienlounge
Die Medienlounge der Fakultät Architektur ist ein Ort der Information, des Austausches und der Begegnung. Ergänzend zur Hauptbibliothek der Fachhochschule stellt sie unterschiedlichste Medien zur Architektur zur Verfügung: Bücher, Zeitschriften, Videos, Audiodateien, dazu Geräte zur Online Recherche und zum Digitalisieren (Scannen). Die Medien werden fortwährend aktualisiert und können hier eingesehen und diskutiert werden. Es kann in unterschiedlichster Form gearbeitet werden: Alleine, in Teams, still oder in angeregter Diskussion.
Aktuelle Pläne
Aktuell läuft durch Studierende der Fachrichtung Architektur die Planung einer Neugestaltung, um diskursive Nutzungen zu stärken.
Öffnungszeiten
Dienstag bis Freitag
11:00 – 13:30 und 14:00 – 16:30 Uhr