Zur Startseite
Navigation überspringen
Fachrichtungen
Fachrichtungen der FH Erfurt
Angewandte Informatik
Architektur
Bauingenieurwesen
Bildung und Erziehung von Kindern
Forstwirtschaft
Gartenbau
Gebäude- und Energietechnik
Landschaftsarchitektur
Soziale Arbeit
Stadt- und Raumplanung
Verkehrs- und Transportwesen
Wirtschaftswissenschaften
Menü schließen
Onlinedienste
Onlinedienste
Benutzerportal
Berufungsmanagement
Bibliothekskonto
FHEMail - Studierende
Interner Bereich
Moodle
NetStorage
NextCloud
Outlook Web Access
PIP Workflows
Prozessportal (PIP)
Stellenportal BITE
Studierendenportal (ecampus)
Stunden- und Prüfungsplan
Zeiterfassung
Menü schließen
Englisch
Login
Studium
schließen
✕
Studium
Studienangebot
Bewerbung
Hochschulluft schnuppern
Studienorganisation
Service und Beratung
Studentische Vertretung
Forschung
schließen
✕
Forschung
Forschungsprofil
Forschungsservice
Forschungsprojekte
Wissenschaftlicher Nachwuchs
Kommission Forschung und Transfer
Aktuelles
International
schließen
✕
International
International Office
Sprachenzentrum
Partnerhochschulen
Incoming
Outgoing
Projekte und Initiativen
Karriere
schließen
✕
Karriere
Stellenangebote
Ihre Professur an der FH Erfurt
FUTURE FUSION Podcast
Jobs für Studierende
Leben in Erfurt
International Lehren und Forschen
Gründungsservice
Weiterbildungsangebot
Talent Pool
Hochschule
schließen
✕
Hochschule
Aktuelles
Fakultäten und Fachrichtungen
Gremien
Hochschulleitung
Personenverzeichnis
Profil
Verwaltung
Zentrale Einrichtungen
Alumni
Suche
Suche schließen
Suche
Suchfeld
Suchen
Oft gesucht
Studienbeginn
Hochschulluft schnuppern
Studienangebot
Aktuelles
Fakultäten und Fachrichtungen
Campus
Menü | Suche
Suche
Menü
Oft gesucht
Studienbeginn
Hochschulluft schnuppern
Studienangebot
Aktuelles
Fakultäten und Fachrichtungen
Campus
Fachrichtungen
Fachrichtungen
Angewandte Informatik
Architektur
Bauingenieurwesen
Bildung und Erziehung von Kindern
Forstwirtschaft
Gartenbau
Gebäude- und Energietechnik
Landschaftsarchitektur
Soziale Arbeit
Stadt- und Raumplanung
Verkehrs- und Transportwesen
Wirtschaftswissenschaften
Englisch
Login
Login
Login
Onlinedienste
Onlinedienste
Benutzerportal
Berufungsmanagement
Bibliothekskonto
FHEMail - Studierende
Interner Bereich
Trenner
Moodle
NetStorage
NextCloud
Outlook Web Access
PIP Workflows
Trenner
Prozessportal (PIP)
Stellenportal BITE
Studierendenportal (ecampus)
Stunden- und Prüfungsplan
Zeiterfassung
Schnellzugriff
Schnellzugriff
Studierendensekretariat
Hochschulbibliothek
Studienangebot
Zentrale Einrichtungen
Fakultäten
Studium
Studium
Studienangebot
Bewerbung
Hochschulluft schnuppern
Studienorganisation
Service und Beratung
Studentische Vertretung
Forschung
Forschung
Forschungsprofil
Forschungsservice
Forschungsprojekte
Wissenschaftlicher Nachwuchs
Kommission Forschung und Transfer
Aktuelles
International
International
International Office
Sprachenzentrum
Partnerhochschulen
Incoming
Outgoing
Projekte und Initiativen
Karriere
Karriere
Stellenangebote
Ihre Professur an der FH Erfurt
FUTURE FUSION Podcast
Jobs für Studierende
Leben in Erfurt
International Lehren und Forschen
Gründungsservice
Weiterbildungsangebot
Talent Pool
Hochschule
Hochschule
Aktuelles
Fakultäten und Fachrichtungen
Gremien
Hochschulleitung
Personenverzeichnis
Profil
Verwaltung
Zentrale Einrichtungen
Alumni
Sie sind hier:
Personenverzeichnis
›
Fischer, Günther
›
Goethe-Nationalmuseum
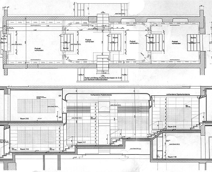
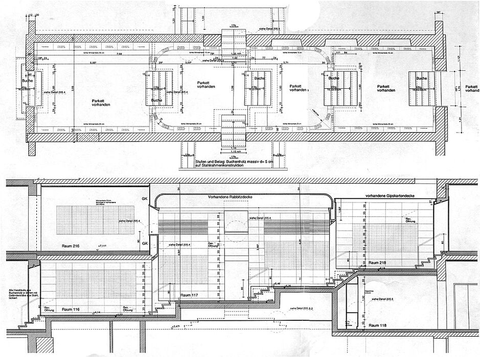
Neugestaltung Goethe-Nationalmuseum Weimar 1993-1999
Bestand und Planung
Neugestaltung Goethe-Nationalmuseum Weimar 1993-1999
Neugestaltung Goethe-Nationalmuseum Weimar 1993-1999
Neugestaltung Goethe-Nationalmuseum Weimar 1993-1999
Neugestaltung Goethe-Nationalmuseum Weimar 1993-1999
Foyer, Möbel aus Glas
Neugestaltung Goethe-Nationalmuseum Weimar 1993-1999
Neugestaltung Goethe-Nationalmuseum Weimar 1993-1999
Neugestaltung Goethe-Nationalmuseum Weimar 1993-1999
Neugestaltung Goethe-Nationalmuseum Weimar 1993-1999
Neugestaltung Goethe-Nationalmuseum Weimar 1993-1999
Neugestaltung Goethe-Nationalmuseum Weimar 1993-1999
Neugestaltung Goethe-Nationalmuseum Weimar 1993-1999
Neugestaltung Goethe-Nationalmuseum Weimar 1993-1999
Kaskade
Neugestaltung Goethe-Nationalmuseum Weimar 1993-1999
Neugestaltung Goethe-Nationalmuseum Weimar 1993-1999
Neugestaltung Goethe-Nationalmuseum Weimar 1993-1999
Neugestaltung Goethe-Nationalmuseum Weimar 1993-1999
Neugestaltung Goethe-Nationalmuseum Weimar 1993-1999
Neugestaltung Goethe-Nationalmuseum Weimar 1993-1999
Neugestaltung Goethe-Nationalmuseum Weimar 1993-1999
Neugestaltung Goethe-Nationalmuseum Weimar 1993-1999
Neugestaltung Goethe-Nationalmuseum Weimar 1993-1999
Neugestaltung Goethe-Nationalmuseum Weimar 1993-1999
Hofsaal
Neugestaltung Goethe-Nationalmuseum Weimar 1993-1999
Neugestaltung Goethe-Nationalmuseum Weimar 1993-1999
Neugestaltung Goethe-Nationalmuseum Weimar 1993-1999
Neugestaltung Goethe-Nationalmuseum Weimar 1993-1999
Neugestaltung Goethe-Nationalmuseum Weimar 1993-1999
Neugestaltung Goethe-Nationalmuseum Weimar 1993-1999
Haupttreppe
Neugestaltung Goethe-Nationalmuseum Weimar 1993-1999
Neugestaltung Goethe-Nationalmuseum Weimar 1993-1999
Neugestaltung Goethe-Nationalmuseum Weimar 1993-1999
Neugestaltung Goethe-Nationalmuseum Weimar 1993-1999
Neugestaltung Goethe-Nationalmuseum Weimar 1993-1999
Neugestaltung Goethe-Nationalmuseum Weimar 1993-1999
Neugestaltung Goethe-Nationalmuseum Weimar 1993-1999
Neugestaltung Goethe-Nationalmuseum Weimar 1993-1999
Neugestaltung Goethe-Nationalmuseum Weimar 1993-1999
Neugestaltung Goethe-Nationalmuseum Weimar 1993-1999
Neugestaltung Goethe-Nationalmuseum Weimar 1993-1999
Neugestaltung Goethe-Nationalmuseum Weimar 1993-1999
Café Faustina
Neugestaltung Goethe-Nationalmuseum Weimar 1993-1999
Neugestaltung Goethe-Nationalmuseum Weimar 1993-1999
Neugestaltung Goethe-Nationalmuseum Weimar 1993-1999
Neugestaltung Goethe-Nationalmuseum Weimar 1993-1999
Neugestaltung Goethe-Nationalmuseum Weimar 1993-1999
Neugestaltung Goethe-Nationalmuseum Weimar 1993-1999