sweets – Revitalisierung der Schokoladenfabrik in Greußen

In Greußen, nur eine halbe Stunde nördlich von Erfurt und mit dem Zug gut erreichbar, steht direkt am Bahnhof eine alte Schokoladenfabrik, ein beeindruckendes Zeugnis der bedeutenden Industriekultur Thüringens. Studierende des Masterstudiengangs Architektur haben im Wintersemester 2021-22 im Fachgebiet Entwerfen und Bauen im Bestand Nutzungskonzepte und Entwürfe für eine Nachnutzung des städtebaulich und architektonisch hochwertigen Gebäudeensembles entwickelt.
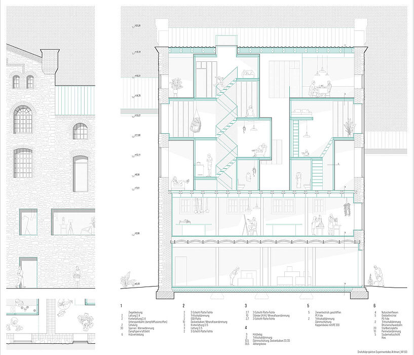
1872 als Zuckerfabrik errichtet wurde die Fabrik im Laufe des 20. Jahrhunderts mehrfach umgenutzt und weiter gebaut und steht seit der Wende leer. Der Gebäudekomplex mit ca. 9.000 m2 Nutzfläche besteht aus dem Fabrikgebäude, das sich in mehrere 2- bis 4-geschossige Baukörper gliedert und der ehemaligen Fabrikantenvilla. Direkt an der Bahnstrecke Erfurt - Nordhausen gelegen bildet die Fabrik zusammen mit dem jenseits der Gleise gelegenen ehemaligen Bahnhofsgebäude, das inzwischen zu einem Wohnprojekt umgebaut wurde ein einladendes städtebauliches Ensemble. Die Entwürfe der Studierenden stellen Zukunftsperspektiven für das vom Abriss bedrohte Objekt dar. Aufbauend auf analytischen Untersuchungen wurden die Potentiale des Standortes aufgedeckt, neue Nutzungsszenarios gefunden und in konkrete Raumprogramme übersetzt. Dabei wurden nicht nur die aktuellen gesellschaftlichen und wirtschaftlichen Entwicklungen betrachtet wie z.B. die Situation auf dem Wohnungs- und Immobilienmarkt, mögliche Bedarfe der regionalen Gründerszene und die sich vielerorts abzeichnende Tendenz, den Lebensmittelpunkt aus den Städten in ländliche Gebiete zu verlagern. Auch der bestehenden Bausubstanz wurde als Ressource eine zentrale Rolle eingeräumt. Die eingehende Untersuchung des Gebäudebestands und der vielfältigen historischen Baukonstruktionen lieferte Grundlage und Inspiration für Entwürfe baulich-räumlicher Interventionen, die die Schokoladenfabrik als Stadt-Land-Hub zum Wohnen und Arbeiten und für kulturelle und soziale Nutzungen neu etablieren könnten.
Ab Dienstag, 12. April 2022 werden die Pläne und Modelle der Arbeiten für zwei Wochen in Greußen zu sehen sein:
Eröffnung
12. April 2022, 9:00 Uhr
Ort
Markt 39, 99718 Greußen
Öffnungszeiten
jeweils dienstags und donnerstags, 9:00 - 12:00 Uhr bis einschließlich 21. April



















