 
		Design-Build-Projekt GREEN CAMPUS Hörsaal in Holzbauweise
Studierenden der Fachrichtung Architektur entwickelten im Rahmen eines Design-Build-Projektes einen demontierbaren Hörsaal. Dieser konnte 2020 realisiert werden und wurde mit dem dem Thüringer Staatspreis für Baukultur 2021 ausgezeichnet. Das Projekt wurde im Wintersemester 2016-17 im Rahmen eines interdisziplinären Studienprojektes durch Prof. Philipp Krebs initiiert eine interdisziplinäre Gruppe Studierender entworfen und bis zur Ausführungsreife entwickelt. Der Dialog mit Herstellern, Verarbeitern und den Studierenden aus den Fachrichtungen Bauingenieurwesen und Gebäude- und Energietechnik stand im Zentrum des praxisorientierten 1:1 Projektes.
2017 erfolgte die Auszeichnung mit dem Hochschulpreis Deutscher Holzbau in Hannover. Aus der Jurybeurteilung: „Die konsequente Umsetzung der Idee eines temporären Hörsaals bis ins Detail und herausragende Qualität des Gesamtentwurfes beeindruckt die Jury. Sie waren am Ende ausschlaggebend für die Auszeichnung als Preisträger. Die Basis für die erfolgreiche Konzeption und Gestaltung dieser Arbeit zieht die Jury auch im interdisziplinären Ansatz. Von Anfang an wurden externe Holz-Experten, wie Hersteller und Verarbeiter, eingebunden.“
Gestaltungskonzept
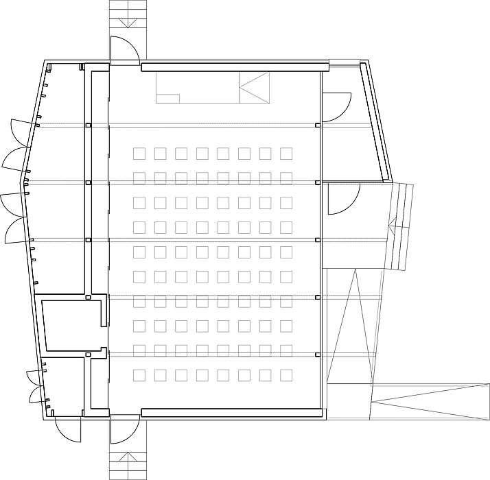
Die Form des Baukörpers entwickelte sich durch die Modulation eines einfachen auf einem Holzbau-Raster beruhenden Konstruktionsmodells. Die Verformung vollzieht sich im Schnitt und im Grundriss gleichermaßen. Der Hörsaal wird im zentralen Bereich mit Auswirkungen auf die Raumakustik und das Raumerlebnis höher und breiter. Die Randzonen dienen der Erschießung und integrieren eine innovative, energieeffiziente Lüftungstechnik.
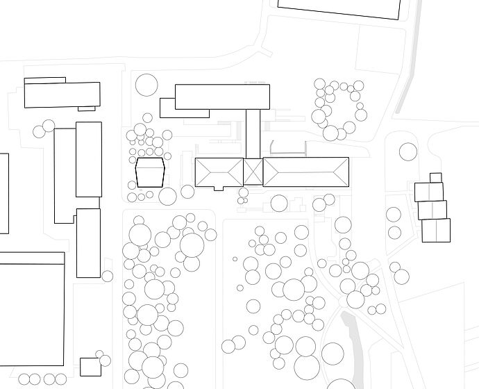
Im Kontext des bestehenden Campus ist das Gebäude als Solitär im Übergang von Gebäudeensemble zum historischen Park situiert. Eine Bekleidung aus vertikalen Holzlamellen verleiht dem Gebäude einen spezifischen Charakter. Die wird verstärkt, indem die Hüllkonstruktion homogen über die Außenwände und das Dach geführt wird. Die PV-Module sind als Intarsien in die Dachfläche integriert.
Entwurf Studierende
Paul Heller, Bernadette Horsch, Anna Büttner, Dominik Friedrich, Lisa Lamprecht, David Lukas Kleist, Christoph Steigerwald, Leon Gloël, Yannick Hafner
Betreuung Studienprojekt
Prof. Krebs (Architektur) in Kooperation mit Prof. Simon (Tragwerksplanung), Prof. Kappert (Gebäudetechnik)
Umsetzung
Architektur – Funken Architekten, Erfurt
 Tragwerksplanung – Leonardt, Andrä und Partner, Erfurt
 TGA-Planung –  ELT Ing. Büro Wohlgefahrt, Erfurt / HLS Ing. Büro Hilbig, Erfurt
 Bauherrnvertretung – Freistaat Thüringen TLBV, Herr Zimmermann und weitere Beteiligte
 Nutzervertretung – Dezernat Bau und Liegenschaften, Herr Ströde und weitere Beteiligte
 Gestalterische Prozessbegleitung – Prof. Philipp Krebs